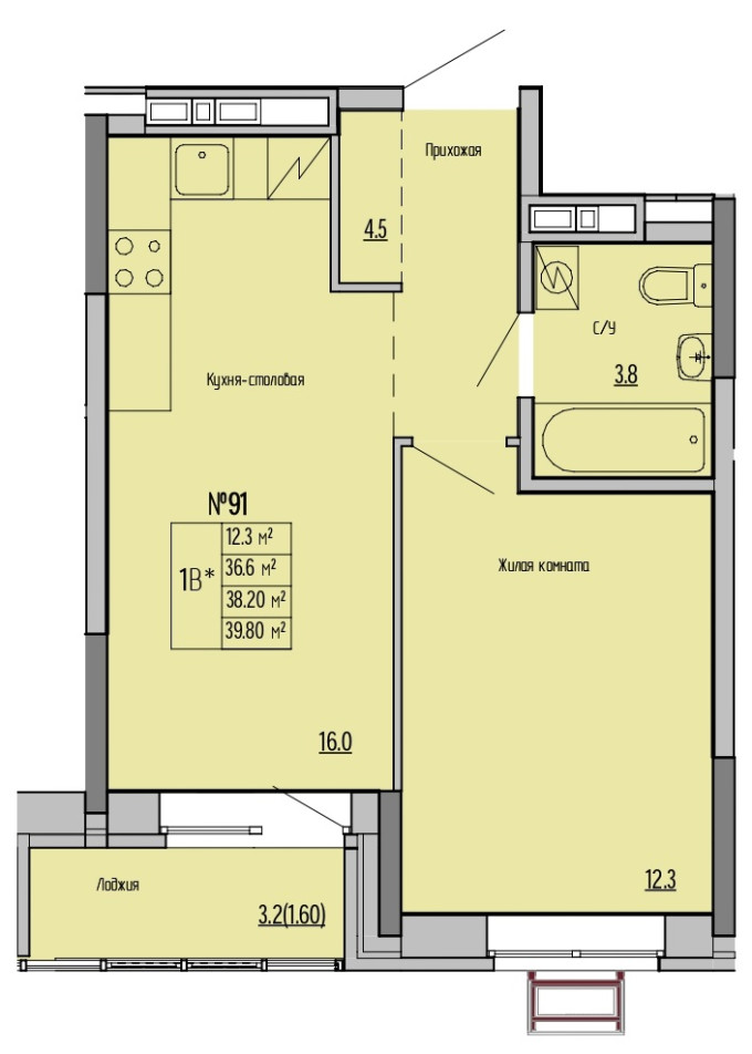
Живой комплекс Настроение дом №8
квартира №91
Акционная цена действует при покупке квартиры с предчистовой отделкой наличными и ипотечными средствами
Вся представленная на сайте информация, касающаяся цены продажи, носит информационный характер и не является публичной офертой, определяемой положениями Гражданского кодекса РФ. Опубликованная на данном сайте информация может быть изменена в любое время без предварительного уведомления.
Подобные квартиры
| Дом | Номер квартиры | Кол-во комнат | Этаж | Общая площадь | Цена |
| Живой комплекс Настроение дом №8 | 176 | 1 | 16 | 39,8 м2 | 5 157 000 |
| Живой комплекс Настроение дом №8 | 174 | 1 | 16 | 37,8 м2 | 4 887 000 |
| Живой комплекс Настроение дом №8 | 172 | 1 | 16 | 30,6 м2 | 3 945 600 |
| Живой комплекс Настроение дом №8 | 163 | 1 | 15 | 37,8 м2 | 4 814 600 |


